Avatar Design and Construction Inc

Residential/Retail Mixed Use Design Build in Natick MA

Project Scope & Highlights:

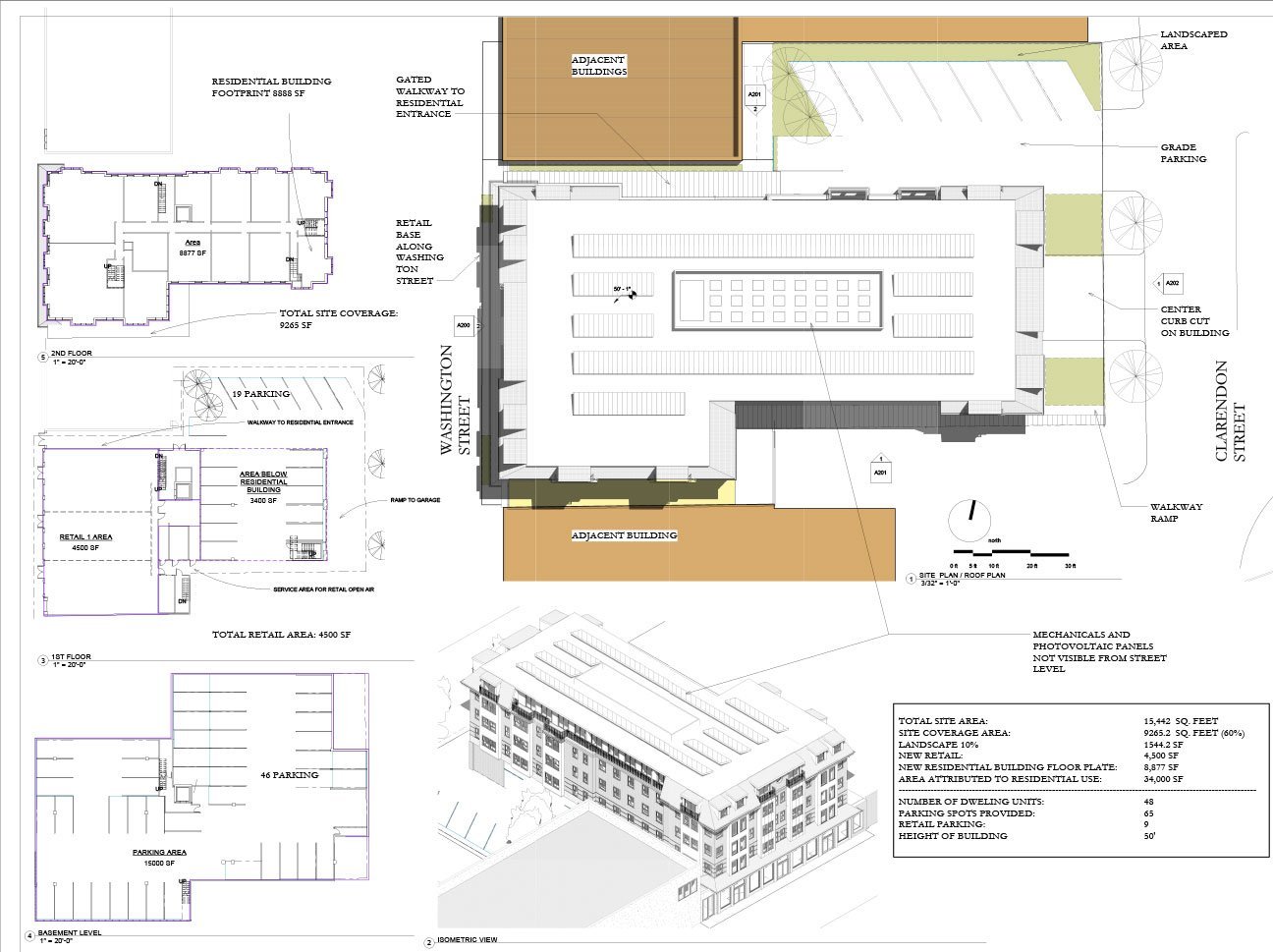
The Flats in Natick MA

Project Budget: 16.5 Million – Conventional Steel & Concrete Podium with Wood Panel Construction On Top. Construction of 48 unit apartment complex with (4) retail storefronts on the first floor and underground parking.

Mixed Use Building to Feature:

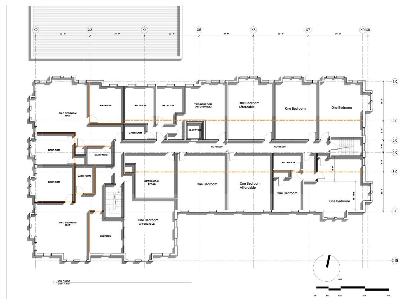
  • 48 Residential Units
    • Studios, 1 Bedroom and 2 bedroom Living
  • Gym
  • Restaurant
  • Bakery
  • Juice Cafe
  • Outdoor Garden

This 14 month project fully permitted and ready to break ground in November 2021.

Stay tuned for updates on this project

Scroll to Top